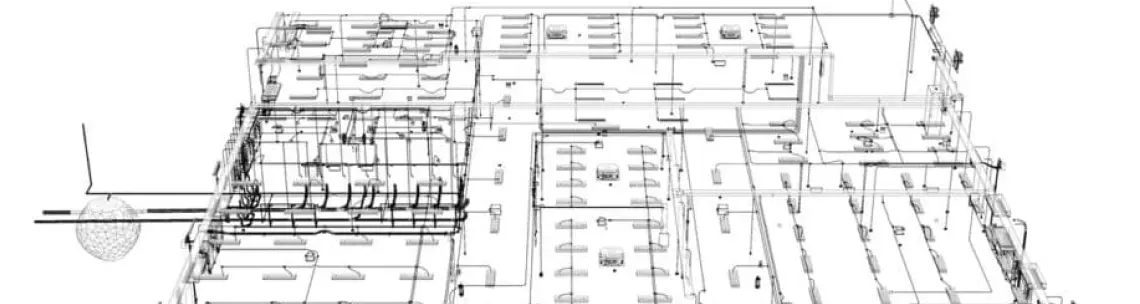
Steel structural projects require precision, coordination and efficient execution. Even slight errors in detail or planning might lead to problems in manufacturing, delays in the project and extra expenditures. As projects become increasingly complicated, standard workflows typically can’t provide the level of precision required. That’s why Building Information Modeling (BIM) is such a big aspect […]
- Posted in Steel Structure Detailing
- With 0 Comments
- standard Post
