
Durability meets design when it comes to metal access solutions. Our services for steel staircases, handrails, and ladders provide engineered detailing and fabrication support for safe, functional, and visually appealing installations. From sleek metal staircases in modern interiors to industrial-grade powder coated ladders, our drawings and fabrication solutions ensure every element is designed for long-term performance.
Whether it’s metal stairs with landing, custom handrails, or a ladder for stairs, our team of experts delivers fully buildable details and fabrication-ready documents. By working closely with architects, contractors, and steel staircase fabricators, we make sure every design translates seamlessly into production and installation.

Our Steel Staircase Fabrication Drawings, Handrail & Ladder Services Include:
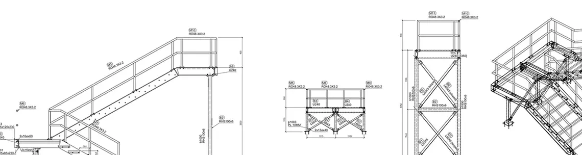
- Detailed drawings for metal stair fabrication, including straight, spiral, and curved staircases
- Custom metal stairs with landing layouts, designed for residential, commercial, and industrial use
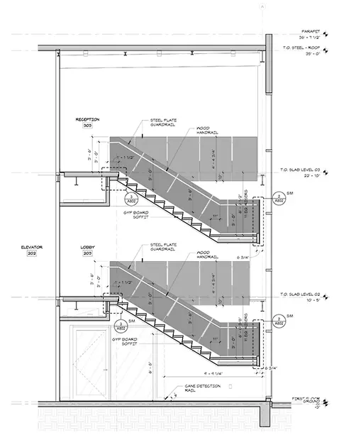
- Handrail detailing for steel, glass, and hybrid railing systems
- Steel stair fabrication drawings with welds, joints, and part schedules
- Metal fabricated stairs with sectional cuts, exploded views, and assembly notes
- Industrial powder coated ladders for safety, durability, and weather resistance
Construction Process
Pre-Construction
Setting project goals and scope, ensuring accurate timelines and budget planning from the start.
Design-Build
Seamless design and execution with constant collaboration to meet vision, cost, and quality.
Plan/ Spec
Detailed plans and specs developed to align with your goals, codes, and materials.
Cost Estimating
Precise cost breakdowns for labor, materials, and timelines to avoid budget surprises.
Project Building
From blueprint to reality, we ensure your project is built on-time and within budget.
Why Choose Our Steel Stair & Handrail Detailing Services?
Expertly detailed. Built for safety, designed for impact. Here’s what our steel stair and handrail services include.
Precision for Strength & Safety
Every staircase and ladder is documented with structural integrity and compliance with safety standards in mind.
Integration with Fabricators
Our drawings are aligned with the workflows of steel staircase fabricators, ensuring efficient manufacturing and error-free installation.
Customization for Any Project
From luxury interiors to heavy-duty industrial platforms, we deliver tailored metal stair fabrication and ladder solutions.
Lasting Finishes
We detail protective coatings like galvanizing and powder coated ladders for enhanced durability and corrosion resistance.


Key Cost Factors in Steel Staircases & Ladders
- Design Complexity – Spiral stairs, custom landings, and ornate railings increase detailing scope.
- Material & Finish Options – Mild steel, stainless steel, and powder coatings affect fabrication costs.
- Project Scale & Load Requirements – Residential stairs differ from industrial heavy-duty ladders in scale and detailing.
- Installation Conditions – Space constraints, structural tie-ins, and code compliance add coordination needs.
Range of Our Staircases & Ladder Services
Residential & Commercial Metal Staircases
Elegant metal staircases and metal stairs with landing tailored to fit interiors and entryways.
Industrial Ladders & Safety Access
Durable powder coated ladders and heavy-duty utility stairs built for safety and resilience.
Custom Metal Fabricated Stairs
Specialized metal fabricated stairs with intricate designs, railings, and finishes.
Handrail & Guardrail Detailing
Handrail drawings for steel, cable, or hybrid systems, integrated into staircase and ladder designs.

More Details
How we did it 🙂
At Draw Stick, we provide accurate and timely construction estimates that help builders, contractors, and developers make confident project decisions. Our step-by-step process ensures clarity, reduces risk, and keeps your project aligned with budget goals.
Every great structure begins with a smart estimate.
From material takeoffs to complete cost breakdowns, we support construction professionals across the U.S. with dependable estimates that drive results, on paper and on site.
